Jedo Heavy Duty Tubular Deadbolts 102mm Black
Heavy Tubular Dead Bolts provide a high level of security for doors by locking a solid metal bolt into the door frame. Operated by a thumb turn, these deadbolts secure the door against forced entry. Unlike spring-operated locks, deadbolts do not rely on a spring mechanism.
KEY FEATURES:
Finish: Antique brass, black, polished stainless steel, brass finish, satin stainless steel, dark bronze, gun metal & satin brass.
Size: 64mm, 76mm, 102mm
Sprung: Heavy
Material Grade: Grade 304 Stainless Steel
Corrosion Grade: Grade 3
Fire Rated: FD30/60 & Certifire Approved
Certification: Certified under UKCA1121 and CE2812 standards
Standards: BS EN 12209:2003
Fixings: 4 x wood screws
To maintain compliance with the fire standard for these hinges, it is recommended that you fit these with the relevant intumescent pack (GRA 18 & GRA 18.2)
STANDARDS & CERTIFICATIONS



| PVD Finish | No |
|---|---|
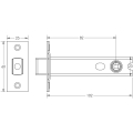
| Overall Size | 60 x 25mm x 102mm |
| Residential/Commerical | Residential/Commerical |
| Internal/External | Internal |
| Material Grade | 304g Stainless Steel |
| Range | Jedo |
| Material | Stainless Steel |
| Finish | Black |
| Certifire | Yes |
| CE / UKCA | BS EN 12209 |
| Fire Rating | FD30/60 |
| Size | 102mm |
Click on any of the following links to download the file.


